Magic House
  • Home
  • Mieszkania
  • Domy
  • Zespół
  • Kontakt
  • Zgłoś swoją nieruchomość

Kawalerka z balkonem Gdańsk Zaspa

Zakup Mieszkanie
544 854zł
21300zł / m²
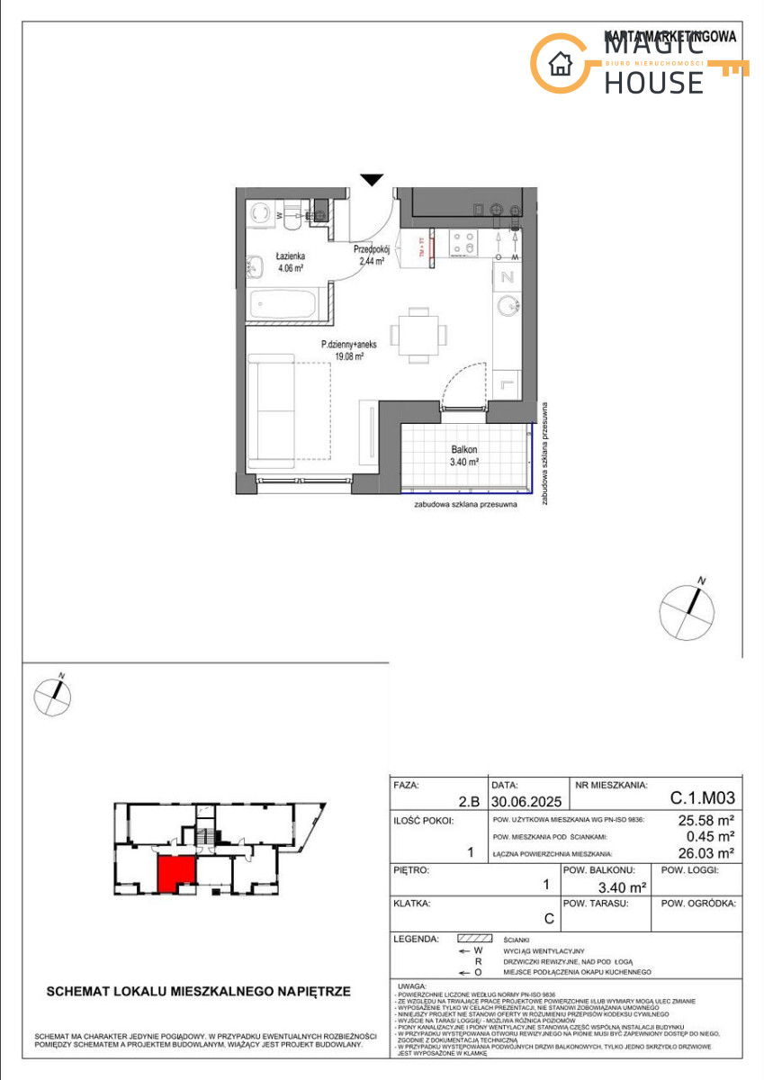
  • Powierzchnia 25.58 m2
  • Liczba pokoi 1
  • Piętro 5
  • Rok budowy 2026
  • Adres Gdańsk/Zaspa, Leszczyńskich
  • pierwotny Rynek

Opis

Na sprzedaż: 1-pokojowe mieszkanie | Gdańsk Zaspa-Rozstaje | Bezpośrednio przy parku 

Na sprzedaż przytulne, 1-pokojowe mieszkanie o powierzchni 25,58 m², położone na 1. piętrze nowoczesnego budynku w sercu Gdańska – w dzielnicy Zaspa-Rozstaje, tuż przy granicy Parku Millenium.

Dlaczego warto?

  • Idealne miejsce do życia dla singla, pary lub młodej rodziny
  • Świetna lokata kapitału – doskonała oferta inwestycyjna
  • Komfort, prywatność i natura w sercu miasta
  • Gotowe do urządzenia zgodnie z Twoim stylem
  • Spokój i prestiżowa lokalizacja bez kompromisów

Lokalizacja:
Mieszkanie znajduje się w prestiżowej części Gdańska, która łączy bliskość centrum miasta z wyjątkową zielenią. Zaledwie kilka kroków dzieli je od terenów rekreacyjnych i tras spacerowych w Parku Millenium. Lokalizacja zapewnia szybki dostęp do plaży, modnych restauracji, sklepów i dzielnic biznesowych — Wrzeszcz i Oliwa w zasięgu kilkunastu minut jazdy autem.

Atuty inwestycji:

  • Bezpośrednie sąsiedztwo rozległego parku miejskiego
  • Kameralny, 5-piętrowy budynek z windą
  • Dostęp do strefy fitness, zielonego patio i innych udogodnień dla mieszkańców
  • Klimatyzowane części wspólne, eleganckie lobby
  • Ogródki, tarasy lub balkony w każdym lokalu
  • Wysoki standard architektury i wykończenia
  • Kameralne budynki wśród zieleni
  • Nowoczesne rozwiązania sprzyjające komfortowi i prywatności

Zainteresowany? Zadzwoń i umów się na prezentację!
Chcesz poznać szczegóły? Skontaktuj się już teraz — ta oferta szybko zniknie z rynku!
Nie zwlekaj — mieszkania z ogródkiem w tej lokalizacji to prawdziwa rzadkość!

gdansk.robyg.pl/mieszkanie/124947


Zadzwoń do nas aby zyskać:

– Czas – przeanalizujemy rynek pod kątem Twoich kryteriów ZA CIEBIE.

– Pieniądze – znamy ceny transakcyjne podobnych nieruchomości.

– Spokój – nasz doradca kredytowy pomoże Tobie wybrać i uzyskać kredyt w jednym z 15 banków ZA DARMO.

– Pewność – nasi specjaliści przeprowadzą Cię przez cały proces zakupu lub sprzedaży nieruchomości.

– Dyskrecję – mamy dostęp i doświadczenie w sprzedaży ofert „spod lady”.

– Uśmiech – mamy 98% zadowolonych Klientów.

– Partnera biznesowego – wielu z naszych Klientów współpracuje z nami długoterminowo.

Zostań w dobrych rękach, skontaktuj się z nami pod numerem 730 800 273 (Oddział Gdańsk) lub 730 600 311 (Oddział Gdynia) i zacznij zyskiwać.

„Wszystkie przedstawione powyżej informacje dotyczące nieruchomości oraz wskazane ceny mają jedynie charakter informacyjny (poglądowy) i nie stanowią oferty handlowej w rozumieniu art. 66 par. 1 Kodeksu Cywilnego”

Szczegóły oferty

  • Parking podziemny
  • Winda
  • Komórka
  • Balkon
  • Prąd
  • Woda
  • Internet
  • Kanalizacja

Podobne oferty

Zakup

Mieszkanie 2-pokojowe Gdańsk Wrzeszcz

860 909zł

Mieszkanie 2-pokojowe Gdańsk Wrzeszcz

  • Powierzchnia 48.18 m2
  • Powierzchnia użytkowa 48.18 m2
  • Liczba pokoi 2
  • Liczba łazienek 1
  • Piętro 10
  • Rok budowy 2025
  • Adres Gdańsk/Wrzeszcz, Aleja Gen. Józefa Hallera
  • pierwotny Rynek
Opublikowano: 5 dni temu Dowiedz się więcej
Zakup

2 pok.po generalnym remoncie|Przymorze|Falowiec|1

749 000zł

2 pok.po generalnym remoncie|Przymorze|Falowiec|1

  • Powierzchnia 46.00 m2
  • Powierzchnia użytkowa 46.00 m2
  • Liczba pokoi 2
  • Liczba łazienek 1
  • Piętro 10
  • Rok budowy 1973
  • Adres Gdańsk/Przymorze Wielkie, Obrońców Wybrzeża
  • wtórny Rynek
Opublikowano: 5 dni temu Dowiedz się więcej
Zakup

Kawalerka | Dostępna od zaraz | Balkon | Winda

460 000zł

Kawalerka | Dostępna od zaraz | Balkon | Winda

  • Powierzchnia 32.79 m2
  • Powierzchnia użytkowa 32.79 m2
  • Liczba pokoi 1
  • Liczba łazienek 1
  • Piętro 4
  • Rok budowy 2021
  • Adres Gdańsk/Orunia Dolna, Ofiar Grudnia '70
  • wtórny Rynek
Opublikowano: 5 dni temu Dowiedz się więcej
  • Instagram
  • Facebook

Kontakt

Gdańsk: 730-800-273
Gdynia: 730-600-311
kontakt@magichouse.pl

Adres

ul. Słowackiego 37D
80-257 Gdańsk
ul. Śląska 53/B104
81-304 Gdynia

Przepisy prawne

  • Regulamin oraz polityka prywatności

Copyright © MagicHouse 2026 | Realizacja Pageart