Magic House
  • Home
  • Mieszkania
  • Domy
  • Zespół
  • Kontakt
  • Zgłoś swoją nieruchomość

3-pokojowe Mieszkanie w Centrum Kartuz!

Zakup Mieszkanie
667 320zł
12000zł / m²
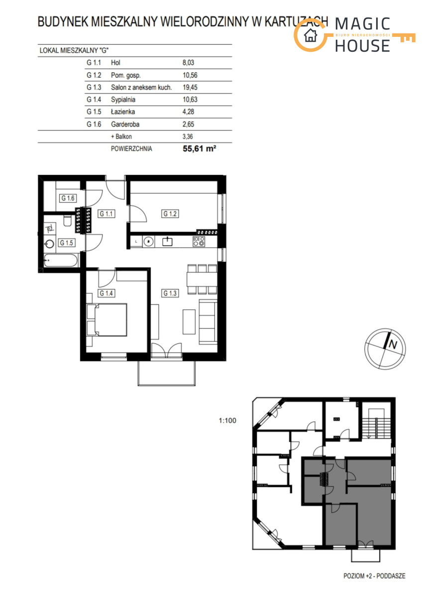
  • Powierzchnia 55.61 m2
  • Powierzchnia użytkowa 55.61 m2
  • Liczba pokoi 3
  • Liczba łazienek 1
  • Piętro 2
  • Rok budowy 2025
  • Adres Kartuzy/, 3 Maja
  • pierwotny Rynek

Opis

Prezentuję Państwu mieszkanie 3 pokojowe w centrum Kartuz.

 
Nieruchomość położona na 2 piętrze o pow. 55,61 m2


W skład którego wchodzi:
– duży przedpokój,
– przestronny salon z aneksem kuchennym z wyjściem na balkon,
– sypialnia,
– sypialnia,
– łazienka .

 
Nasza oferta to połączenie doskonałej lokalizacji, najwyższej jakości materiałów oraz wyjątkowej atmosfery spokoju i ciszy.
Położenie zaledwie 30 km od morza Bałtyckiego zapewnia dostęp do uroków nadmorskiego życia, a jednocześnie pozwala cieszyć się urokami malowniczych Kartuz.
 
Ta oferta to gwarancja komfortu i luksusu, dzięki zastosowaniu najnowszych technologii oraz wysokiej jakości materiałów budowlanych. Zapraszamy do inwestycji, która zapewni nie tylko dom, ale także styl życia.

 
Lokalizacja:
Mieszkania znajdują się w Kartuzach, zaledwie kilka kroków od stacji PKM, co gwarantuje łatwy dojazd do Trójmiasta. W bliskiej okolicy znajdziesz również wszystkie niezbędne usługi, placówki edukacyjne oraz tereny rekreacyjne, które sprawią, że codzienne życie stanie się jeszcze wygodniejsze.
 

Mieszkanie zostanie wyposażone w dwu funkcyjny piec gazowy, co zapewni komfortowe ogrzewanie oraz ciepłą wodę.

 

Dodatkowe udogodnienia:
Miejsca postojowe dostępne w cenie dodatkowych 17 000 zł
 

To miejsce stworzone dla osób, które szukają idealnego połączenia miejskiego stylu życia z bliskością natury. Bliskość terenów rekreacyjnych oraz świetna komunikacja z Trójmiastem sprawiają, że to oferta idealna zarówno dla rodzin, jak i osób pracujących w Trójmieście.
 

Zapraszam do kontaktu oraz na prezentację.


Zadzwoń do nas aby zyskać:

– Czas – przeanalizujemy rynek pod kątem Twoich kryteriów ZA CIEBIE.

– Pieniądze – znamy ceny transakcyjne podobnych nieruchomości.

– Spokój – nasz doradca kredytowy pomoże Tobie wybrać i uzyskać kredyt w jednym z 15 banków ZA DARMO.

– Pewność – nasi specjaliści przeprowadzą Cię przez cały proces zakupu lub sprzedaży nieruchomości.

– Dyskrecję – mamy dostęp i doświadczenie w sprzedaży ofert „spod lady”.

– Uśmiech – mamy 98% zadowolonych Klientów.

– Partnera biznesowego – wielu z naszych Klientów współpracuje z nami długoterminowo.

Zostań w dobrych rękach, skontaktuj się z nami pod numerem 730 800 273 (Oddział Gdańsk) lub 730 600 311 (Oddział Gdynia) i zacznij zyskiwać.

„Wszystkie przedstawione powyżej informacje dotyczące nieruchomości oraz wskazane ceny mają jedynie charakter informacyjny (poglądowy) i nie stanowią oferty handlowej w rozumieniu art. 66 par. 1 Kodeksu Cywilnego”

Szczegóły oferty

  • Parking
  • Balkon

Podobne oferty

Zakup

Mieszkanie 5-pokojowe w Sercu Kartuz!

1 300 000zł

Mieszkanie 5-pokojowe w Sercu Kartuz!

  • Powierzchnia 95.00 m2
  • Powierzchnia użytkowa 95.00 m2
  • Liczba pokoi 5
  • Liczba łazienek 2
  • Piętro 3
  • Rok budowy 2025
  • Adres Kartuzy/, Kolejowa
  • pierwotny Rynek
Opublikowano: 1 miesiąc temu Dowiedz się więcej
Zakup

Mieszkanie 3-pokojowe w Sercu Kartuz!

740 000zł

Mieszkanie 3-pokojowe w Sercu Kartuz!

  • Powierzchnia 57.00 m2
  • Powierzchnia użytkowa 57.00 m2
  • Liczba pokoi 3
  • Liczba łazienek 1
  • Piętro 3
  • Rok budowy 2025
  • Adres Kartuzy/, Kolejowa
  • pierwotny Rynek
Opublikowano: 1 miesiąc temu Dowiedz się więcej
Zakup

Mieszkanie 5-pokojowe w Sercu Kartuz!

1 100 000zł

Mieszkanie 5-pokojowe w Sercu Kartuz!

  • Powierzchnia 95.00 m2
  • Powierzchnia użytkowa 95.00 m2
  • Liczba pokoi 5
  • Liczba łazienek 2
  • Piętro 3
  • Rok budowy 2025
  • Adres Kartuzy/, Kolejowa
  • pierwotny Rynek
Opublikowano: 1 miesiąc temu Dowiedz się więcej
  • Instagram
  • Facebook

Kontakt

Gdańsk: 730-800-273
Gdynia: 730-600-311
kontakt@magichouse.pl

Adres

ul. Słowackiego 37D
80-257 Gdańsk
ul. Śląska 53/B104
81-304 Gdynia

Przepisy prawne

  • Regulamin oraz polityka prywatności

Copyright © MagicHouse 2026 | Realizacja Pageart