Magic House
  • Home
  • Mieszkania
  • Domy
  • Zespół
  • Kontakt
  • Zgłoś swoją nieruchomość

WIDOK NA LAS|2 BALKONY| HALA| KOMÓRKA|DO ODBIORU

Zakup Mieszkanie
1 185 000zł
17652zł / m²
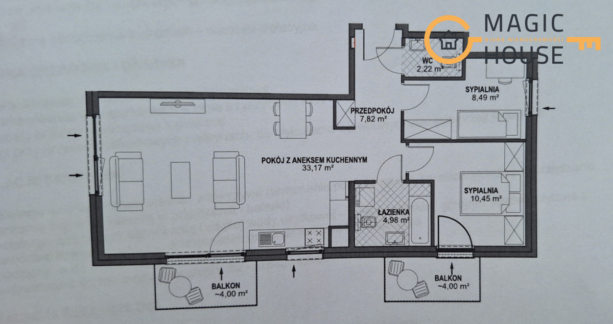
  • Powierzchnia 67.13 m2
  • Powierzchnia użytkowa 67.13 m2
  • Liczba pokoi 3
  • Liczba łazienek 1
  • Piętro 5
  • Rok budowy 2025
  • Adres Gdańsk/Wrzeszcz, Magellana
  • wtórny Rynek

Opis

Przedmiotem oferty jest bardzo atrakcyjne 3 pokojowe mieszkanie o powierzchni 67 m2 z dwoma balkonami i magicznym  widokiem na las.

Nieruchomość stanowi część inwestycji ” Osiedle Leśna Polana- Srebrniki” cenionego dewelopera PB Górski.

To idealne rozwiązanie dla osób, poszukujących komfortowego i funkcjonalnego miejsca do życia.

Sam deweloper o inwestycji: ”Osiedle Srebrniki położone jest z dala zgiełku głównych ulic, z dostępem do licznych terenów rekreacyjnych. Jednocześnie położenie na granicy gdańskich dzielnic Wrzeszcza oraz Moreny zapewnia nie tylko pełne zaplecze handlowe, ale również świetne skomunikowanie (w bezpośrednim sąsiedztwie tramwaje, autobusy, przystanek PKM).”

Mieszkanie znajduje się na 2 piętrze nowoczesnego budynku wyposażonego w windę, co zapewnia wygodę i łatwy dostęp do podziemnej części hali garażowej oraz piwnicy.

Lokal jest w stanie deweloperskim, co oznacza, że nowy właściciel będzie mógł dostosować go do swoich własnych potrzeb i preferencji.

Głównym pomieszczeniem jest przestronny pokój z aneksem kuchennym ( 33m2)  i wyjściem do słoneczny balkon. To idealne miejsce do relaksu, spożywania posiłków i spędzania czasu z bliskimi. Duże okna zapewniają obfite natężenie światła dziennego, co sprawia, że mieszkanie jest jasne i przyjazne.

Dwa pokoje są bardzo ustawne i dają możliwość dogodnej aranżacji.

Mieszkanie składa się także z korytarza oraz łazienki i osobnej  toalety, którą możemy zaaranżować na pralnię lub garderobę.

Do mieszkania przynależą komórka lokatorska w cenie 10 000 PLN, co pozwoli na przechowywanie dodatkowych rzeczy i utrzymanie porządku w mieszkaniu oraz miejsce postojowe w hali garażowej, co zapewni bezpieczne i wygodne miejsce dla samochodu- za dodatkową opłatą 38 500 PLN.

To mieszkanie jest doskonałym wyborem dla tych, którzy poszukują komfortu, funkcjonalności i nowoczesnego stylu życia.

SERDECZNIE ZAPRASZAMY NA PREZENTACJĘ.

Zadzwoń do nas aby zyskać:

– Czas – przeanalizujemy rynek pod kątem Twoich kryteriów ZA CIEBIE.

– Pieniądze – znamy ceny transakcyjne podobnych nieruchomości.

– Spokój – nasz doradca kredytowy pomoże Tobie wybrać i uzyskać kredyt w jednym z 15 banków ZA DARMO.

– Pewność – nasi specjaliści przeprowadzą Cię przez cały proces zakupu lub sprzedaży nieruchomości.

– Dyskrecję – mamy dostęp i doświadczenie w sprzedaży ofert „spod lady”.

– Uśmiech – mamy 98% zadowolonych Klientów.

– Partnera biznesowego – wielu z naszych Klientów współpracuje z nami długoterminowo.

Zostań w dobrych rękach, skontaktuj się z nami pod numerem 730 800 273 (Oddział Gdańsk) lub 730 600 311 (Oddział Gdynia) i zacznij zyskiwać.

„Wszystkie przedstawione powyżej informacje dotyczące nieruchomości oraz wskazane ceny mają jedynie charakter informacyjny (poglądowy) i nie stanowią oferty handlowej w rozumieniu art. 66 par. 1 Kodeksu Cywilnego”

Szczegóły oferty

  • Parking podziemny
  • Winda
  • Taras
  • Komórka
  • Balkon

Podobne oferty

Zakup

4 pokojowe mieszkanie z ogrodem w Oliwie

2 382 083zł

4 pokojowe mieszkanie z ogrodem w Oliwie

  • Powierzchnia 106.04 m2
  • Powierzchnia użytkowa 106.04 m2
  • Liczba pokoi 4
  • Piętro 3
  • Rok budowy 2024
  • Adres Gdańsk/Oliwa, Artura Grottgera
  • pierwotny Rynek
Opublikowano: 2 miesiące temu Dowiedz się więcej
Zakup

130 m² ogrodu od południa, z widokiem na zieleń

2 922 330zł

130 m² ogrodu od południa, z widokiem na zieleń

  • Powierzchnia 100.77 m2
  • Powierzchnia użytkowa 100.77 m2
  • Liczba pokoi 4
  • Liczba łazienek 2
  • Piętro 4
  • Rok budowy 2026
  • Adres Gdańsk/Zaspa, Leszczyńskich
  • pierwotny Rynek
Opublikowano: 2 miesiące temu Dowiedz się więcej
Zakup

Ciekawe 3-pokojowe mieszkanie na Kokoszkach

702 500zł

Ciekawe 3-pokojowe mieszkanie na Kokoszkach

  • Powierzchnia 88.67 m2
  • Liczba pokoi 3
  • Liczba łazienek 1
  • Piętro 1
  • Rok budowy 2024
  • Adres Gdańsk/Kokoszki, Stokłosy
  • pierwotny Rynek
Opublikowano: 2 miesiące temu Dowiedz się więcej
  • Instagram
  • Facebook

Kontakt

Gdańsk: 730-800-273
Gdynia: 730-600-311
kontakt@magichouse.pl

Adres

ul. Słowackiego 37D
80-257 Gdańsk
ul. Śląska 53/B104
81-304 Gdynia

Przepisy prawne

  • Regulamin oraz polityka prywatności

Copyright © MagicHouse 2025 | Realizacja Pageart