Magic House
  • Home
  • Mieszkania
  • Domy
  • Zespół
  • Kontakt
  • Zgłoś swoją nieruchomość

Przestronne mieszkanie nad samym morzem!

Zakup Mieszkanie
1 360 818zł
17300zł / m²
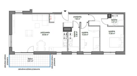
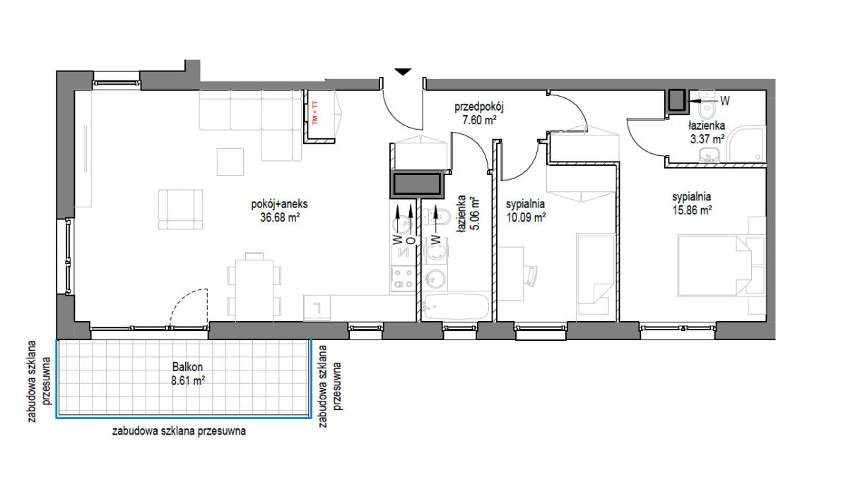
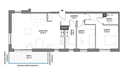
  • Powierzchnia 78.66 m2
  • Powierzchnia użytkowa 78.66 m2
  • Liczba pokoi 3
  • Liczba łazienek 1
  • Piętro 3
  • Rok budowy 2025
  • Adres Gdańsk/Brzeźno, Bogumiła Kobieli
  • pierwotny Rynek

Opis

Kobieli 4 to luksusowa zielona enklawa zlokalizowana w malowniczym gdańskim Brzeźnie. W tym miejscu relaks i komfort stanową nieodłączną część dnia, a bliskość plaży i przyrody w połączeniu z doskonałym dojazdem do centrum sprawiają, iż jest to jeden z najlepszych adresów w mieście.

Na inwestycję składają się 2 ekskluzywne budynki, gdzie na nabywców czeka niecałe 60 apartamentów w podwyższonym standardzie.

 
WYSOKI STANDARD APARTAMENTÓW:

Przestrzeń do wypoczynku – duże balkony i tarasy oraz prywatne ogródki.
Luksusowa przestrzeń do wyłącznego korzystania – balkony w zabudowie systemowej, od producentów
najwyższej klasy, umożliwiające korzystanie z balkonu nawet zimą*.
Maksymalne doświetlenie naturalnym światłem – wysokie ponadstandardowej wielkości okna zapewniające
dużo światła.
Poczucie przestrzeni – ponadstandardowa wysokość apartamentów około 270 cm.
Cisza i spokój w każdym apartamencie – murowane ściany działowe o właściwościach wygłuszających.
Optymalne wykończenie – dwukrotnie malowane ściany i sufity, by przyspieszyć wykończenie mieszkania.
Ochrona i wygląd – ponadstandardowej wysokości drzwi antywłamaniowe około 210 cm.
Prywatność mieszkańców – osiedle z kontrolą dostępu, wyposażone w system monitoringu.

WYSOKI STANDARD OSIEDLA:

Eleganckie i trwałe wykończenie – części wspólne zaprojektowane przez architekta wnętrz wykończone
materiałami szlachetnymi jak kamień, czy stal.
Relaks – bujna zieleń tworząca idealne miejsce do wypoczynku.
Komfort – przygotowanie do instalacji klimatyzacji w apartamentach na ostatnim piętrze.
Bezpieczeństwo – sterowane elektrycznie rolety przeciwsłoneczne na parterze.
Gwarancja – doświadczenie i rękojmia dewelopera oraz gwarancja producenta na każdy materiał i urządzenia zastosowane w budynku.

 
Kobieli 4, dzięki swojemu położeniu przy spokojnej ulicy, daje mieszkańcom poczucie prywatności i spokoju. Jednocześnie osiedle znajduje się blisko głównych arterii komunikacyjnych, gwarantując sprawne dotarcie do wszystkich części Trójmiasta.

Dom znajdą tu najbardziej wymagający klienci – chcący mieszkać na co dzień z rodziną w pobliżu najładniejszej plaży w Gdańsku ( zaledwie 600m od morza), pary i single szukający wyjątkowej inwestycji stanowiącej jednocześnie świetną lokatę kapitału, jak i również osoby poszukujące wyjątkowego apartamentu na weekendowe wyjazdy do Trójmiasta.

Zakup bezpośrednio od dewelopera. BEZ PCC.

Zostało jeszcze kilka wolnych mieszkań. Zapraszam do kontaktu oraz na prezentację.


Zadzwoń do nas aby zyskać:

– Czas – przeanalizujemy rynek pod kątem Twoich kryteriów ZA CIEBIE.

– Pieniądze – znamy ceny transakcyjne podobnych nieruchomości.

– Spokój – nasz doradca kredytowy pomoże Tobie wybrać i uzyskać kredyt w jednym z 15 banków ZA DARMO.

– Pewność – nasi specjaliści przeprowadzą Cię przez cały proces zakupu lub sprzedaży nieruchomości.

– Dyskrecję – mamy dostęp i doświadczenie w sprzedaży ofert „spod lady”.

– Uśmiech – mamy 98% zadowolonych Klientów.

– Partnera biznesowego – wielu z naszych Klientów współpracuje z nami długoterminowo.

Zostań w dobrych rękach, skontaktuj się z nami pod numerem 730 800 273 (Oddział Gdańsk) lub 730 600 311 (Oddział Gdynia) i zacznij zyskiwać.

„Wszystkie przedstawione powyżej informacje dotyczące nieruchomości oraz wskazane ceny mają jedynie charakter informacyjny (poglądowy) i nie stanowią oferty handlowej w rozumieniu art. 66 par. 1 Kodeksu Cywilnego”

Szczegóły oferty

  • Parking
  • Parking podziemny
  • Piwnica
  • Winda
  • Taras
  • Komórka
  • Balkon
  • Garaż

Podobne oferty

Zakup

Ekskluzywny apartament premium z widokiem na natur

2 075 000zł

Ekskluzywny apartament premium z widokiem na natur

  • Powierzchnia 110.00 m2
  • Powierzchnia użytkowa 100.00 m2
  • Liczba pokoi 4
  • Liczba łazienek 2
  • Piętro 4
  • Rok budowy 2024
  • Adres Gdańsk/Piecki-Migowo, Dolne Migowo
  • wtórny Rynek
Opublikowano: 1 miesiąc temu Dowiedz się więcej
Zakup

2-pokojowe mieszkanie wykończone pod klucz

549 000zł

2-pokojowe mieszkanie wykończone pod klucz

  • Powierzchnia 37.00 m2
  • Powierzchnia użytkowa 37.00 m2
  • Liczba pokoi 2
  • Liczba łazienek 1
  • Piętro 4
  • Rok budowy 2025
  • Adres Gdańsk/Orunia, Borkowska
  • wtórny Rynek
Opublikowano: 1 miesiąc temu Dowiedz się więcej
Zakup

STAR TOWER – Nowa Letnica – WIDOK NA MORZE,

1 399 000zł

STAR TOWER – Nowa Letnica – WIDOK NA MORZE,

  • Powierzchnia 59.00 m2
  • Powierzchnia użytkowa 59.00 m2
  • Liczba pokoi 3
  • Liczba łazienek 1
  • Piętro 18
  • Rok budowy 2021
  • Adres Gdańsk/Letnica, Starowiejska
  • wtórny Rynek
Opublikowano: 1 miesiąc temu Dowiedz się więcej
  • Instagram
  • Facebook

Kontakt

Gdańsk: 730-800-273
Gdynia: 730-600-311
kontakt@magichouse.pl

Adres

ul. Słowackiego 37D
80-257 Gdańsk
ul. Śląska 53/B104
81-304 Gdynia

Przepisy prawne

  • Regulamin oraz polityka prywatności

Copyright © MagicHouse 2026 | Realizacja Pageart