Magic House
  • Home
  • Mieszkania
  • Domy
  • Zespół
  • Kontakt
  • Zgłoś swoją nieruchomość

Nowe M3 z balkonem | ZASPA

Zakup Mieszkanie
811 824zł
20443zł / m²
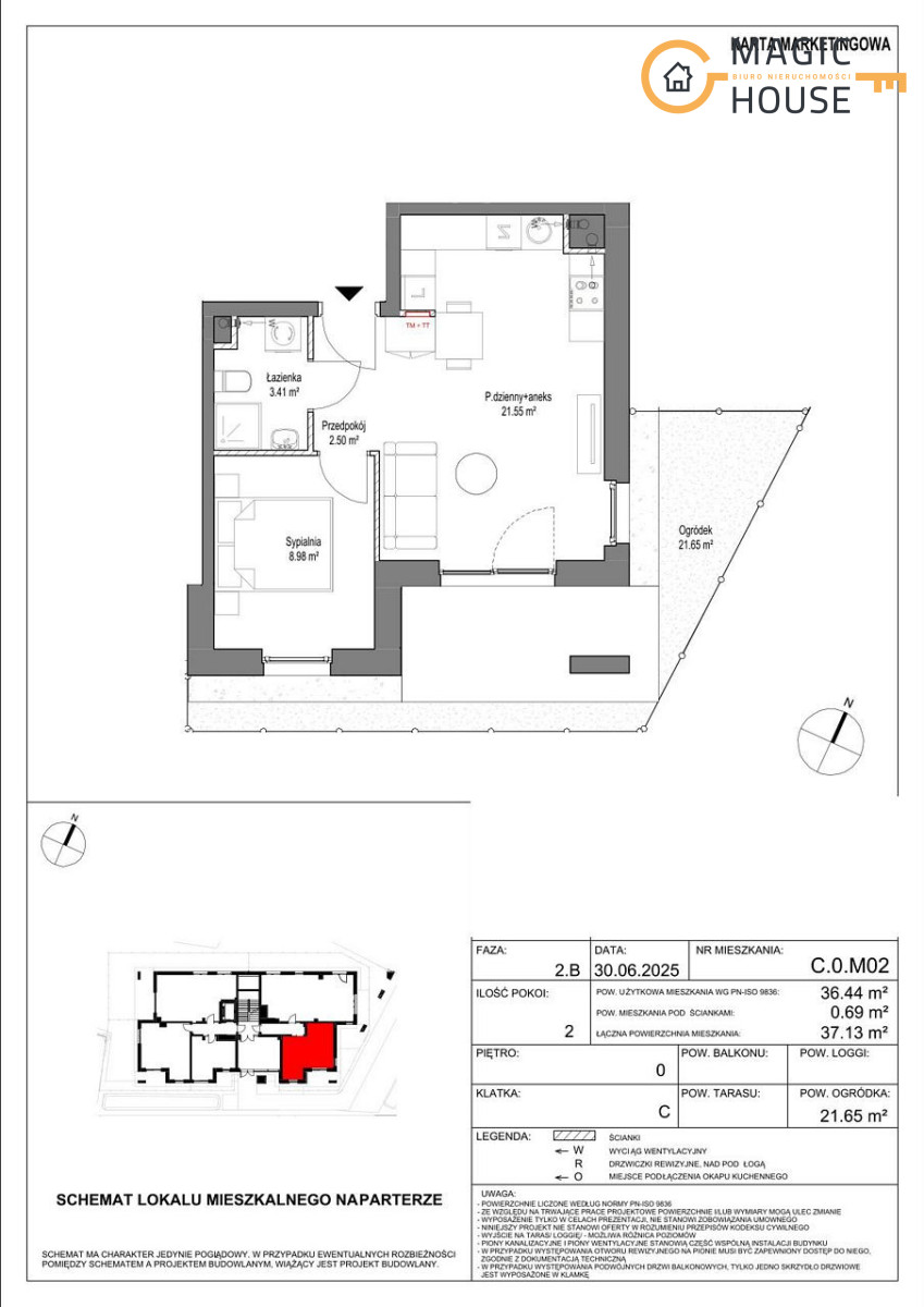
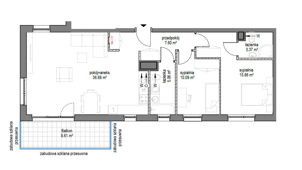
  • Powierzchnia 39.71 m2
  • Powierzchnia użytkowa 39.03 m2
  • Liczba pokoi 2
  • Liczba łazienek 1
  • Piętro 5
  • Rok budowy 2026
  • Adres Gdańsk/Zaspa, Leszczyńskich
  • pierwotny Rynek

Opis

Przedstawiam nową inwestycję – ZASPA

Najbardziej rodzinna i urokliwa dzielnica Gdańska, świetnie skomunikowana, w pierwszej linii brzegowej – jedna z najbardziej pożądanych lokalizacji.

Molo w Brzeźnie – 2,5 km

Olivia Business Center – 4 km

Sopot – 7 km

Śródmieście Gdańska – 7 km

Inwestycja składa się z 3 ekskluzywnych kameralnych pięciopiętrowych budynków, gdzie na przyszłych mieszkańców czeka:

  • 135 apartamentów
  • duże, przestronne balkony i tarasy o powierzchni ponad 60 m2
  • ogródki o powierzchni blisko 200 m2
  • dwupiętrowe klimatyzowane lobby
  • prywatna strefa fitness
  • zielone patio z leżakami słonecznymi i ławkami
  • plac zabaw wyposażony m.in. w ściankę wspinaczkową dla dzieci
  • skrzynki paczkowe w strefie wejściowej każdego budynku

Główne zalety mieszkań:

Dopracowane układy mieszkań z dodatkowymi łazienkami i garderobami w apartamentach
Cały rok na balkonie – balkony ze szklanymi balustradami, w zabudowie systemowej umożliwiającej korzystanie z nich nawet zimą* (w niektórych apartamentach)
Przygotowanie do instalacji klimatyzacji w każdym apartamencie
Sterowane elektrycznie rolety przeciwsłoneczne na parterze i ostatnim piętrze
Ponadstandardowa wysokość apartamentów, od około 268 cm do około 320 cm
Murowane ściany działowe o właściwościach wygłuszających
Maksymalne doświetlenie naturalnym światłem – drewniane, panoramiczne i trzyszybowe okna z możliwością zastosowania filtrów antysmogowych w nawiewnikach
Dwukrotnie malowane na biało ściany i sufity, by przyspieszyć wykończenie mieszkania oraz inne ułatwienia i udogodnienia, jak przygotowanie do instalacji mat grzewczych w łazienkach
Bezpieczne i izolujące hałas drzwi antywłamaniowe z dwoma zamkami, o wysokości około 210 cm montowane wraz z drewnianym progiem

Wysoki standard osiedla

Gwarancja producenta – na użyte elementy, część materiałów zastosowanych przy tej inwestycji posiada deklarację zgodności z normami europejskimi.

Smart House Gold – inteligentny, nowoczesny system zarządzania oświetleniem, urządzeniami elektronicznymi i bezpieczeństwem w mieszkaniu. To lepsza wydajność oraz oszczędność dla domowego budżetu.

Zdalne sterowanie oświetleniem
Zdalne sterowanie ogrzewaniem i temperaturą
Zdalne sterowanie multimediami
Czujniki otwarcia drzwi i okien oraz kontroli ruchu
Zdalne sterowanie roletami przeciwsłonecznymi

Instalacje światłowodowe zapewniające najszybszy możliwy dostęp do Internetu – budynki są wyposażone w instalacje światłowodowe, zapewniające mieszkańcom najszybszy możliwy dostęp do Internetu oraz najlepszy zasięg na rynku. Zastosowanie tej technologii gwarantuje całkowitą odporność na zakłócenia i przesłuchy elektromagnetyczne oraz sporą wydajność.

Ekologiczne oświetlenie LED w częściach wspólnych – energooszczędne oraz ekologiczne oświetlenie LED sterowane czujnikami ruchu. Znacznie zmniejsza ono zużycie energii elektrycznej oraz nie zawiera szkodliwej rtęci. System jest przyjazny środowisku i korzystnie wpływa na zdrowie oraz kieszeń mieszkańców.

Energooszczędne i ekologiczne panele fotowoltaiczne – ekologiczne i nowoczesne rozwiązanie, które powoduje obniżenie rachunków za prąd oraz ma korzystny wpływ na środowisko naturalne.

Opcjonalnie:
Możliwość zakupu komórki lokatorskiej.

Lokalizacja osiedla w środku miasta, gwarantuje łatwy dostęp do licznych restauracji, usług, sklepów i atrakcji. Jednocześnie inwestycja sąsiaduje z pobliskim parkiem, umożliwiając chwile wytchnienia i relaksu w otoczeniu zieleni. Ta inwestycja to jedyne takie połączenie komfortu i prywatności w tętniącym życiem mieście Gdańsk

Dla kogo?
Dla osób, które poszukują unikatowego miejsca do życia spełniającego ich wszystkie wymagania i zwracających uwagę na detale oraz wysoki standard mieszkania oraz osiedla, w którym zamieszkają.

ZAKUP BEZ PROWIZJI OD KUPUJĄCEGO
Przeprowadzimy Cię przez cały proces formalności i odpowiemy na każde pytanie i wątpliwość.

Zapraszamy do kontaktu oraz na prezentację 🙂

gdansk.robyg.pl/inwestycja/leszczynskich-2


Zadzwoń do nas aby zyskać:

– Czas – przeanalizujemy rynek pod kątem Twoich kryteriów ZA CIEBIE.

– Pieniądze – znamy ceny transakcyjne podobnych nieruchomości.

– Spokój – nasz doradca kredytowy pomoże Tobie wybrać i uzyskać kredyt w jednym z 15 banków ZA DARMO.

– Pewność – nasi specjaliści przeprowadzą Cię przez cały proces zakupu lub sprzedaży nieruchomości.

– Dyskrecję – mamy dostęp i doświadczenie w sprzedaży ofert „spod lady”.

– Uśmiech – mamy 98% zadowolonych Klientów.

– Partnera biznesowego – wielu z naszych Klientów współpracuje z nami długoterminowo.

Zostań w dobrych rękach, skontaktuj się z nami pod numerem 730 800 273 (Oddział Gdańsk) lub 730 600 311 (Oddział Gdynia) i zacznij zyskiwać.

„Wszystkie przedstawione powyżej informacje dotyczące nieruchomości oraz wskazane ceny mają jedynie charakter informacyjny (poglądowy) i nie stanowią oferty handlowej w rozumieniu art. 66 par. 1 Kodeksu Cywilnego”

Szczegóły oferty

  • Ogródek
  • Parking
  • Parking podziemny
  • Piwnica
  • Winda
  • Taras
  • Komórka
  • Loggia
  • Balkon
  • Garaż
  • Prąd
  • Woda
  • Internet

Podobne oferty

Zakup

Apartament 5-pokojowy z widokiem panoramy Gdańska

3 679 000zł

Apartament 5-pokojowy z widokiem panoramy Gdańska

  • Powierzchnia 123.00 m2
  • Powierzchnia użytkowa 123.00 m2
  • Liczba pokoi 5
  • Liczba łazienek 2
  • Piętro 10
  • Rok budowy 2021
  • Adres Gdańsk/Przymorze Wielkie, Prezydenta Lecha Kaczyńskiego
  • wtórny Rynek
Opublikowano: 1 miesiąc temu Dowiedz się więcej
Zakup

2 Pokoje po remoncie – Blisko Morza

715 000zł

2 Pokoje po remoncie – Blisko Morza

  • Powierzchnia 45.00 m2
  • Powierzchnia użytkowa 45.00 m2
  • Liczba pokoi 2
  • Liczba łazienek 1
  • Piętro 4
  • Rok budowy 1970
  • Adres Gdańsk/Przymorze, Chłopska
  • wtórny Rynek
Opublikowano: 1 miesiąc temu Dowiedz się więcej
Zakup

2 osobne pokoje , idealna inwestycja

990 000zł

2 osobne pokoje , idealna inwestycja

  • Powierzchnia 39.04 m2
  • Powierzchnia użytkowa 39.04 m2
  • Liczba pokoi 2
  • Liczba łazienek 1
  • Piętro 4
  • Rok budowy 1950
  • Adres Gdańsk/Stare Miasto, Kołodziejska
  • wtórny Rynek
Opublikowano: 1 miesiąc temu Dowiedz się więcej
  • Instagram
  • Facebook

Kontakt

Gdańsk: 730-800-273
Gdynia: 730-600-311
kontakt@magichouse.pl

Adres

ul. Słowackiego 37D
80-257 Gdańsk
ul. Śląska 53/B104
81-304 Gdynia

Przepisy prawne

  • Regulamin oraz polityka prywatności

Copyright © MagicHouse 2026 | Realizacja Pageart